How to Read Concrete Blueprints and Specifications
How to Read Concrete Blueprints and Specifications: A Contractor’s Guide: For many in the industry, the “construction set” (blueprints) is the bible of the project. If you misinterpret a detail in a structural drawing, it can lead to massive cost overruns, safety violations, or even the rejection of the entire concrete pour by a site engineer.
Reading concrete blueprints is a specialized skill. It requires understanding both the graphical layout and the technical narrative—the Specifications (Specs)—that accompany the drawings.

1. The Hierarchy of Concrete Documents
When you are on a commercial site, your information comes from three places. If they conflict, the hierarchy is usually:
- Addenda: Changes made during the bidding phase.
- Specifications (Specs): The written document describing material quality and performance standards.
- Drawings (Blueprints): The graphical representation of the design.
The Golden Rule: If the drawing says “4,000 PSI concrete” but the Spec book says “4,500 PSI for all exterior slabs,” you follow the Spec book. Always check the hierarchy provided by the general contractor.
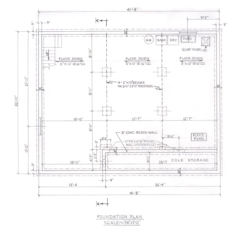
2. Navigating the Structural Drawing Set (S-Series)
Blueprints are organized logically. For a concrete project, you will spend most of your time in the “S” (Structural) series.
- S-001 (General Notes): Do not skip this! It contains critical information like minimum rebar cover, lap splice requirements, and concrete strength classes for different elements.
- Foundation Plans: Shows the layout of footings, pile caps, and slab-on-grade thicknesses.
- Detail Sheets: These provide the “cut-away” view. This is where you see how rebar is bent (hooks), how chairs are spaced, and how expansion joints are detailed.

3. Understanding Rebar Schedules
Blueprints rarely list every single piece of rebar in the main view. Instead, they use Rebar Schedules.
- Mark Numbers: You will see tags like
4-#5 @ 12" OC. - Translation: *
4= Quantity of bars.#5= Size of bar (a #5 bar is 5/8 of an inch in diameter).@ 12" OC= Spaced 12 inches “On Center.”
4. Identifying Concrete Specs
While the drawing shows you where the concrete goes, the Specification Book (often Division 03 of the MasterFormat) tells you what it should be. Look for these critical fields:
- Exposure Classes: This dictates if you need to use air-entraining admixtures for freeze-thaw protection.
- Maximum Aggregate Size: Crucial if you are pouring in tight spaces with dense rebar; if your aggregate is too large, it will “honeycomb” (get stuck) around the steel.
- Curing Requirements: Does the project require wet curing, or a specific curing compound?
5. Performing a “Takeoff” from Blueprints
Before you order concrete, you must perform a takeoff. This is the act of calculating the volume of concrete required based on the dimensions in the drawings.
- Break it down: Calculate footings, then columns, then slabs.
- Account for “Waste”: Always add a waste factor (typically 5-10%) to your total volume. There is always a little bit of concrete left in the pump line or lost due to site conditions.
- Check for Formwork Displacement: Note if the excavation is slightly larger than the footing size; this is where most mistakes in material ordering occur.
6. Common Pitfalls to Avoid
- Missing the “Callouts”: A small note in the corner of a drawing that says “all exposed corners to be chamfered” is often missed, leading to rework.
- Ignoring Elevations: Concrete plans often have “Top of Slab” (TOS) and “Top of Footing” (TOF) elevations. If you build to the wrong elevation, the entire structural frame won’t align.
- Rebar Interference: If the drawings show rebar from two different elements occupying the same space, flag it to the engineer immediately—do not just cut the steel on-site.
Conclusion
Reading blueprints is a blend of technical knowledge and attention to detail. A contractor who can proactively spot a design error in the drawings before the concrete truck arrives is worth their weight in gold to any developer. Take your time, cross-reference the specs with the drawings, and when in doubt—always ask the project engineer for clarification.